Ti Cambio Casa – Agenzia Immobiliare a Roma

120.000,00

Terreno edificabile in Vendita – Vicolo della Selciatella BRACCIANO

Terreno Residenziale in vendita a Bracciano vicolo della Selciatella

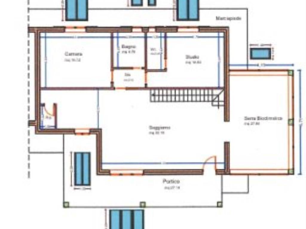
Bracciano – loc. Selciatella Terreno edificabile panoramico vista lago con progetto approvato A Bracciano, nella suggestiva località Selciatella, proponiamo in vendita un terreno edificabile di 1749 mq con progetto approvato per la realizzazione di una villa unifamiliare. Superficie residenziale: 349,80 mc Progetto già approvato per la costruzione di un villino su due livelli, con garage e serra bioclimatica. Posizione panoramica con splendida vista sul Lago di Bracciano Contesto riservato e immerso nel verde, ideale per chi cerca tranquillità senza rinunciare alla comodità dei servizi. Perché una serra bioclimatica? La serra bioclimatica non è solo un elemento estetico, ma una soluzione intelligente e sostenibile per migliorare l’efficienza energetica della casa. Grazie alla sua esposizione studiata, permette di catturare il calore del sole in inverno, riducendo i consumi di riscaldamento, e di mantenere la casa più fresca in estate. Un valore aggiunto che aumenta il comfort abitativo e riduce i costi di gestione, nel pieno rispetto dell’ambiente. Un’opportunità unica per realizzare la tua casa su misura, unendo panorama, tecnologia e sostenibilità!

Caratteristiche

Tipo di immobile : Terreno edificabile
Contratto : Vendita
Superficie : 1749 metri quadrati
Piano : Terra
Totale Piani Edificio : Terra
Tipologia : Terreno edificabile
Data Inserimento Annuncio : 05/03/2026
Condizioni Immobile : Non definite
Ascensore : No
Posto Auto : No
Posto Auto mq : 0 mq
Tipo di Giardino : Non definito
Giardino mq : Non definito
Terreno Esterno : 1749 mq
Cantina : No
Cantina mq : 0 mq
Balcone : No
Balcone mq : 0 mq
Terrazza : No
Terrazza mq : 0 mq
Soffitta mq : 0 mq
Mansarda : No
Mansarda mq : 0 mq
Piscina : No
Vista Mare : Si

Posizione

Città : ROMA
Indirizzo : Vicolo della Selciatella

Struttura interna

Stato Cucina : Non definito
Condizionatori : No

Costi

Prezzo : 120.000,00
Trattativa Riservata : No

Efficienza Energetica

Riscaldamento : Autonomo
Classe Energetica : Autonomo
Indice di prestazione energetica : kwh/m2 anno
Ti Cambio Casa Agenzia Immobiliare
Un'agenzia Innovativa Destinata A Rivoluzionare Il Concetto Di Consulente Immobiliare.

    Confermo di aver letto, compreso ed accettato i termini della Normativa sulla Privacy, qui riportata, ai sensi degli artt. 13 e 14 del GDPR - Regolamento UE 2016/679.

    Compare Listings

    Titolo Prezzo Stato Tipo Area Scopo Camere da letto Bagni