Ti Cambio Casa – Agenzia Immobiliare a Roma

440.000,00

Rustico casale in Vendita – Vocabolo Raggio 405 MASSA MARTANA

Un’oasi di pace nel cuore della campagna umbra

MLS ELITE – ID 2480087
Immerso nella quiete delle colline umbre, a 15 km da Todi e pochi passi dal borgo di Massa Martana, si trova questo splendido casale rustico, costruito nel 1901. La proprietà, ricca di fascino e storia, offre ampi spazi, ideale per chi cerca una residenza esclusiva o un investimento per attività turistiche.

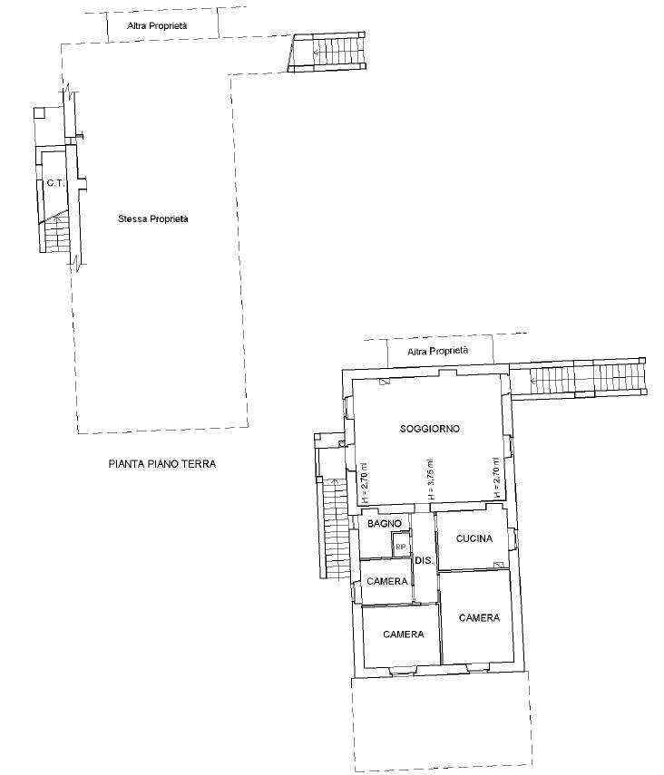
DESCRIZIONE DEL CASALE PRINCIPALE
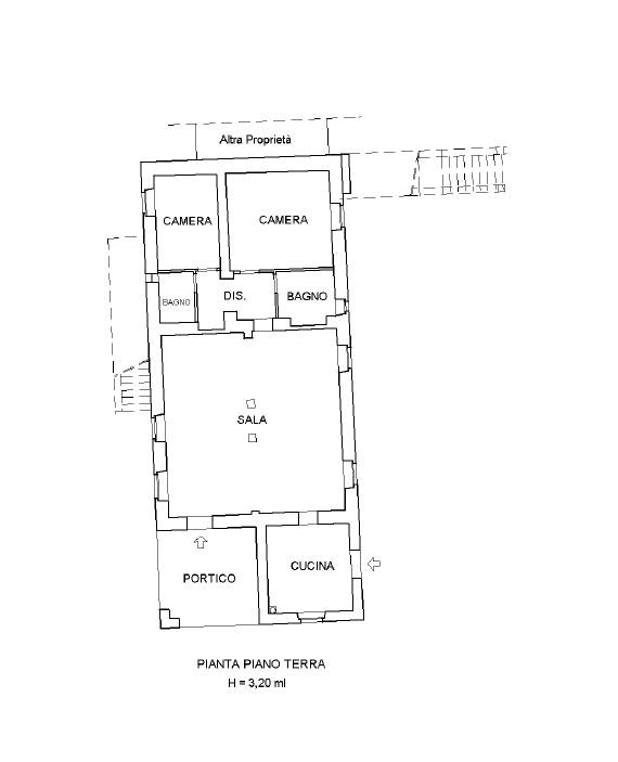
Piano terra (140 mq): appartamento con salone doppio, cucina abitabile, due camere da letto e due bagni. Primo piano (130 mq): appartamento con salone doppio, cucina abitabile, tre camere da letto e un bagno. Entrambi gli appartamenti, caratterizzati da dettagli rustici e accoglienti, sono luminosi e affacciati sul verde circostante.

DEPENDANCE E ANNESSI
Secondo edificio: Piano terra: tre ampie cantine ideali per la conservazione o per essere riconvertite in spazi multifunzionali. Primo piano: una dependance open space di 70 mq con cucina a vista e bagno, perfetta per ospiti o per uso indipendente. Rimessa attrezzi, comoda e funzionale.

SPAZI ESTERNI
La proprietà si estende su 4.000 mq di terreno, un vero angolo di paradiso. Un porticato accogliente offre una zona ombreggiata per relax all’aperto, mentre il campo di bocce regala momenti di svago. Gli ampi spazi verdi alberati e il pozzo completano l’atmosfera bucolica, ideale per vivere in armonia con la natura.

CONTESTO E POSIZIONE
Situato in una delle zone più affascinanti dell’Umbria, il casale gode di un contesto riservato, ma ben collegato ai principali centri storici e culturali della regione. Un luogo dove il tempo sembra essersi fermato, avvolto dalla bellezza della campagna e dalla tranquillità di un panorama unico.

Caratteristiche

Tipo di immobile : Rustico casale
Contratto : Vendita
Superficie : 340 metri quadrati
Piano : Terra
Totale Piani Edificio : 1
Tipologia : Rustico casale
Data Inserimento Annuncio : 13/06/2025
Condizioni Immobile : Ottime
Ascensore : No
Posto Auto : No
Posto Auto mq : 0 mq
Tipo di Giardino : Non definito
Giardino mq : Non definito
Terreno Esterno : 4000 mq
Cantina : No
Cantina mq : 0 mq
Balcone : No
Balcone mq : 0 mq
Terrazza : No
Terrazza mq : 0 mq
Soffitta mq : 0 mq
Mansarda : No
Mansarda mq : 0 mq
Piscina : No
Vista Mare : No
Quartiere : VOCABOLO RAGGIO

Posizione

Città : PERUGIA
Quartiere/località : VOCABOLO RAGGIO
Indirizzo : Vocabolo Raggio 405

Struttura interna

N° Vani : 8
N° Bagni : 4
N° Camere da letto : 5
Soggiorno : Doppio
Stato Cucina : Abitabile
Condizionatori : No

Costi

Prezzo : 440.000,00
Trattativa Riservata : No

Efficienza Energetica

Anno Immobile : 1901
Riscaldamento : Autonomo
Classe Energetica : Autonomo
Indice di prestazione energetica : kwh/m2 anno
Ti Cambio Casa Agenzia Immobiliare
Un'agenzia Innovativa Destinata A Rivoluzionare Il Concetto Di Consulente Immobiliare.

    Confermo di aver letto, compreso ed accettato i termini della Normativa sulla Privacy, qui riportata, ai sensi degli artt. 13 e 14 del GDPR - Regolamento UE 2016/679.

    Compare Listings

    Titolo Prezzo Stato Tipo Area Scopo Camere da letto Bagni