Ti Cambio Casa – Agenzia Immobiliare a Roma

680.000,00

Appartamento in Vendita – ROMA

BALDUINA, VIA PROBA PETRONIA fronte Parco del Pineto

In una delle Vie più richieste del Quartiere, proponiamo in vendita un ampio e luminoso appartamento situato al quarto piano di una palazzina signorile con ascensore. La proprietà gode di una posizione privilegiata, proprio di fronte all’ingresso del Parco del Pineto, polmone verde ideale per chi ama la tranquillità e lo sport all’aria aperta.
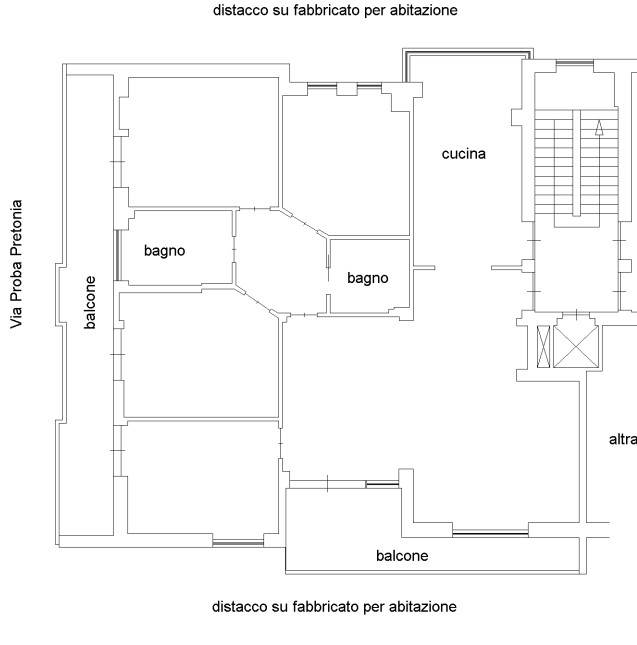
L’immobile, caratterizzato da ambienti spaziosi e ben distribuiti, si compone di:
Ampio Salone di rappresentanza, perfetto per accogliere ospiti, con accesso diretto al balcone con vista aperta e luminoso;
Cucina all’americana, con affaccio aperto sul salone e dotata di una piccola dispensa ;
4 Camere da letto, versatili e luminose di cui tre con affaccio sul secondo grande balcone, ideali per famiglie numerose o per chi necessita di spazi per lo smart-working;
Doppi servizi;
Balconi vivibili con affacci silenziosi.
Cantina, 15 mq di spazio esclusivo, al piano terra e comodamene raggiungibile, dove poter riporre materiali che non si usano frequentemente e biciclette;
Posto auto, non è di proprietà ma è all’interno del garage condominiale e ad uso esclusivo della casa.
La tripla esposizione e il piano alto garantiscono un’ottima luminosità naturale durante tutto l’arco della giornata e un ricircolo d’aria costante.
Perché scegliere questa casa:
Vivere in Via Proba Petronia significa scegliere un contesto riservato ma perfettamente collegato. A pochi passi si trovano tutti i principali servizi di zona Balduina/Belsito, scuole di ogni ordine e grado, e la vicinanza alla stazione FL3 permette spostamenti rapidi verso il centro.

Caratteristiche

Tipo di immobile : Appartamento
Contratto : Vendita
Superficie : 165 metri quadrati
Piano : 4
Totale Piani Edificio : 4
Tipologia : Appartamento
Data Inserimento Annuncio : 15/04/2026
Condizioni Immobile : Buone
Ascensore : Si
Posto Auto : Si
Posto Auto mq : 14 mq
Tipo di Giardino : Non definito
Giardino mq : Non definito
Terreno Esterno : 0 mq
Cantina : Si
Cantina mq : 15 mq
Balcone : Si
Balcone mq : 25 mq
Terrazza : No
Terrazza mq : 0 mq
Soffitta mq : 0 mq
Mansarda : No
Mansarda mq : 0 mq
Piscina : No
Vista Mare : No
Quartiere : BALDUINA

Posizione

Città : ROMA
Quartiere/località : BALDUINA
Indirizzo :
CAP : 00100

Struttura interna

N° Vani : 6
N° Bagni : 2
N° Camere da letto : 4
Stato Cucina : Non definito
Condizionatori : Si

Costi

Prezzo : 680.000,00
Spese Condominiali : 125
Trattativa Riservata : No

Efficienza Energetica

Anno Immobile : 1950
Riscaldamento : Autonomo
Classe Energetica : Autonomo
Indice di prestazione energetica : kwh/m2 anno
Ti Cambio Casa Agenzia Immobiliare
Un'agenzia Innovativa Destinata A Rivoluzionare Il Concetto Di Consulente Immobiliare.

    Confermo di aver letto, compreso ed accettato i termini della Normativa sulla Privacy, qui riportata, ai sensi degli artt. 13 e 14 del GDPR - Regolamento UE 2016/679.

    Compare Listings

    Titolo Prezzo Stato Tipo Area Scopo Camere da letto Bagni