Ti Cambio Casa – Agenzia Immobiliare a Roma

210.000,00

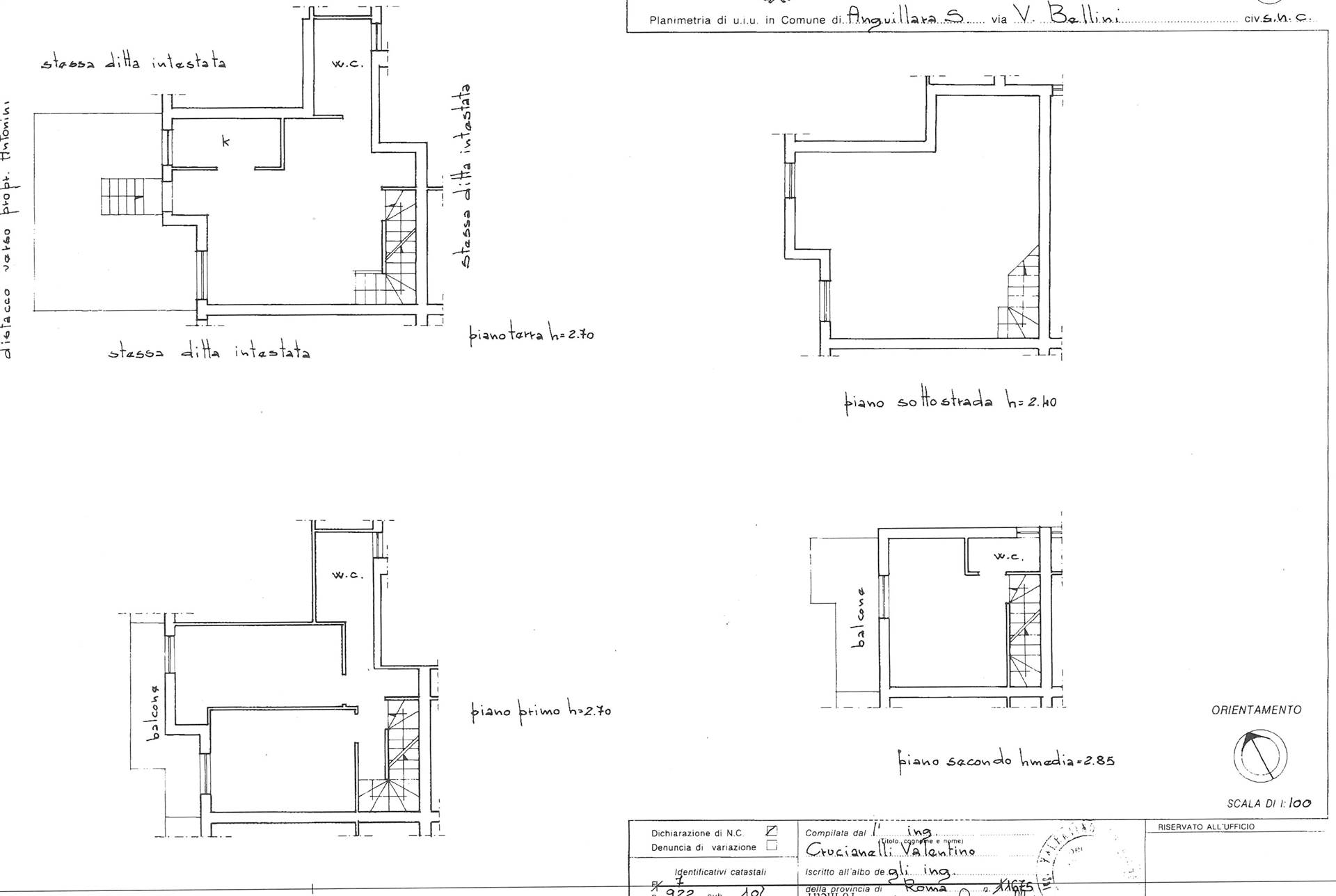
Appartamento in Vendita – Via Vincenzo Bellini ANGUILLARA SABAZIA

Villino a schiera Centrale

MLS Prime ID: 2546220
Villino a schiera Zona Centrale Anguillara, Via Bellini a pochi passi dal Lago Nel cuore di Anguillara Sabazia, in posizione centrale e servita, proponiamo in vendita un villino a schiera su tre livelli con taverna, perfetto per famiglie numerose o per chi desidera ambienti comodi e ben distribuiti. Composizione dell’immobile: – Piano Terra: soggiorno accogliente, cucinotto separato e bagno di servizio. – Primo Piano: due camere da letto luminose, bagno finestrato e balcone. – Secondo Piano: grande camera, bagno privato e balcone. – Piano Seminterrato: ampia taverna multifunzione, ideale come sala hobby, studio o zona relax. Spazi Esterni: – Corte privata frontale – Ampi balconi – Posto auto riservato incluso – A pochi minuti a piedi dal lago – Vicinissimo a scuole, negozi, fermate bus e servizi – Zona tranquilla ma centralissima Ideale per famiglie anche con tre figli, o per chi cerca una casa con spazi ben distribuiti, in una delle zone più amate del Lago di Bracciano. Contattaci per fissare una visita e scoprire ogni dettaglio di questa opportunità unica!

Caratteristiche

Tipo di immobile : Appartamento
Contratto : Vendita
Superficie : 135 metri quadrati
Piano : Terra
Totale Piani Edificio : 3
Tipologia : Appartamento
Data Inserimento Annuncio : 20/02/2026
Condizioni Immobile : Buone
Ascensore : No
Posto Auto : No
Posto Auto mq : 0 mq
Tipo di Giardino : Non definito
Giardino mq : Non definito
Terreno Esterno : 0 mq
Cantina : No
Cantina mq : 0 mq
Balcone : Si
Balcone mq : 15 mq
Terrazza : No
Terrazza mq : 0 mq
Soffitta mq : 0 mq
Mansarda : No
Mansarda mq : 0 mq
Piscina : No
Vista Mare : No

Posizione

Città : ROMA
Indirizzo : Via Vincenzo Bellini
CAP : 00061

Struttura interna

N° Vani : 5
N° Bagni : 3
N° Camere da letto : 4
Soggiorno : Singolo
Stato Cucina : Cucinotto
Condizionatori : No

Costi

Prezzo : 210.000,00
Trattativa Riservata : No

Efficienza Energetica

Anno Immobile : 1990
Riscaldamento : Autonomo
Classe Energetica : Autonomo
Indice di prestazione energetica : 3 kwh/m2 anno
Ti Cambio Casa Agenzia Immobiliare
Un'agenzia Innovativa Destinata A Rivoluzionare Il Concetto Di Consulente Immobiliare.

    Confermo di aver letto, compreso ed accettato i termini della Normativa sulla Privacy, qui riportata, ai sensi degli artt. 13 e 14 del GDPR - Regolamento UE 2016/679.

    Compare Listings

    Titolo Prezzo Stato Tipo Area Scopo Camere da letto Bagni